Việc lựa chọn mẫu nhà phù hợp không chỉ dựa vào thiết kế đẹp mắt mà còn cần cân nhắc đến yếu tố phong thủy, giúp mang lại tài lộc và sức khỏe cho cả gia đình. Bài viết này FIM House sẽ giới thiệu những mẫu nhà phố 3 tầng hiện đại nổi bật, đồng thời hướng dẫn bạn cách chọn lựa sao cho hài hòa giữa thẩm mỹ và phong thủy.
Contents
1. Những ưu điểm khi thiết kế nhà phố 3 tầng
Nhà phố 3 tầng hiện đại mang lại nhiều ưu điểm nổi bật, đặc biệt phù hợp với nhu cầu sống tại các khu đô thị đông đúc. Dưới đây là một số lợi ích chính của thiết kế này:
- Tối ưu hóa không gian: Nhà phố 3 tầng cho phép tận dụng tối đa diện tích đất, tạo ra nhiều không gian sử dụng cho gia đình, từ phòng khách, phòng ngủ đến các khu vực chức năng khác.
- Đa dạng về công năng: Mẫu nhà này có thể được thiết kế cho nhiều mục đích khác nhau, như văn phòng làm việc tại nhà, phòng tập gym hay không gian thư giãn, giúp gia chủ linh hoạt trong việc sử dụng.
- Thiết kế hiện đại và thẩm mỹ: Nhà phố 3 tầng thường đi kèm với thiết kế hiện đại, tối giản và sang trọng, sử dụng các vật liệu như kính và bê tông để tạo nên vẻ đẹp thu hút.
- Khả năng chiếu sáng tự nhiên: Với các cửa sổ lớn và giếng trời, nhà phố 3 tầng có thể tận dụng ánh sáng tự nhiên tối đa, mang lại không khí thoáng đãng và dễ chịu cho không gian sống.
- Giá trị bất động sản cao: Nhà phố 3 tầng thường có giá trị bất động sản cao hơn so với các loại hình nhà khác, đặc biệt ở những khu vực đô thị phát triển.
Xem thêm: Khám phá các xu hướng thiết kế nhà phố 2 mặt tiền

Nhà phố 3 tầng hiện đại giúp tối ưu hóa không gian
2. Mẫu thiết kế nhà phố 3 tầng hiện đại
Nhà phố 3 tầng hiện đại đang trở thành xu hướng phổ biến trong thiết kế kiến trúc, đặc biệt tại các khu đô thị lớn. Dưới đây là một số mẫu thiết kế nổi bật và đặc điểm của chúng:
Mẫu nhà phố 3 tầng mái bằng
Thiết kế đơn giản với các hình khối vuông vắn, sử dụng vật liệu kính chủ yếu cho cửa chính và cửa sổ, giúp tận dụng ánh sáng tự nhiên.
Kiến trúc mái bằng bền bỉ, dễ dàng chống chọi với thời tiết và không làm ảnh hưởng đến các nhà bên cạnh.


Mẫu thiết kế nhà phố 3 tầng mái bằng hiện đại, kiến trúc mái độc đáo
Mẫu nhà phố 3 tầng mái Thái
Kết hợp phong cách tân cổ điển với màu sắc nhẹ nhàng, phần mái dốc tạo nên vẻ đẹp hiện đại nhưng vẫn thanh lịch.
Mái Thái giúp thoát nước tốt và tạo không gian thoáng đãng cho ngôi nhà.


Mẫu thiết kế nhà phố 3 tầng mái thái giúp thoát nước tốt tạo không gian thoáng mát cho ngôi nhà
Mẫu nhà phố 3 tầng 1 tum
Tum trên cùng không chỉ giúp chống nóng mà còn tăng thêm diện tích sinh hoạt.
Thiết kế này mang lại không gian thư giãn ngoài trời, lý tưởng cho việc tổ chức tiệc hoặc trồng cây xanh.


Mẫu nhà phố 3 tầng 1 tum mang lại không gian thư giãn, thoáng mát, hiện đại
Mẫu nhà phố hiện đại với mặt tiền kính
Sử dụng kính cường lực cho mặt tiền, tạo cảm giác rộng rãi và hiện đại.
Tối ưu hóa ánh sáng tự nhiên và tạo sự kết nối giữa không gian trong và ngoài.

Mẫu thiết kế nhà phố 3 tầng mặt tiền kín giúp tối ưu hóa ánh sáng tự nhiên cho không gian
Mẫu nhà phố 3 tầng phong cách tối giản
Tập trung vào sự đơn giản, loại bỏ các chi tiết rườm rà nhưng vẫn đảm bảo tính thẩm mỹ.
Mang lại không gian sống thoải mái, dễ dàng bố trí nội thất và trang trí.
Xem thêm: Thiết kế nhà phố hiện đại với diện tích 10x20m


Mẫu thiết kế nhà phố 3 tầng phong cách tối giản vừa tinh tế vừa tiết kiệm được nhiều chi phí
3. Nguyên tắc thiết kế nhà phố 3 tầng phù hợp phong thủy
Để thiết kế nhà phố 3 tầng phù hợp với phong thủy, gia chủ cần chú ý đến một số nguyên tắc cơ bản nhằm đảm bảo không chỉ tính thẩm mỹ mà còn mang lại tài lộc và sức khỏe cho gia đình. Dưới đây là những nguyên tắc quan trọng:
3.1. Hướng nhà
- Chọn hướng phù hợp: Hướng nhà nên được xác định dựa trên tuổi của gia chủ và các thành viên trong gia đình. Hướng tốt sẽ giúp thu hút năng lượng tích cực và tài lộc.
3.2. Bố trí không gian
- Phân chia công năng hợp lý: Các phòng chức năng như phòng khách, phòng ngủ, phòng bếp cần được bố trí sao cho thuận tiện và phù hợp với nguyên tắc phong thủy. Ví dụ, phòng bếp nên ở vị trí tránh gió lùa và có ánh sáng tự nhiên.
3.3. Cửa chính
- Cửa chính rộng rãi: Cửa chính là nơi đón nhận năng lượng vào nhà, nên cần thiết kế rộng rãi và thông thoáng. Tránh đặt gương đối diện cửa chính để không phản chiếu năng lượng ra ngoài.
3.4. Màu sắc và vật liệu
- Lựa chọn màu sắc hài hòa: Màu sắc của ngôi nhà nên phù hợp với mệnh của gia chủ. Nên sử dụng các vật liệu tự nhiên như gỗ, đá để tạo cảm giác gần gũi và dễ chịu.
3.5. Cảnh quan xung quanh
- Tạo không gian xanh: Việc trồng cây xanh xung quanh nhà không chỉ giúp cải thiện môi trường sống mà còn mang lại sự thư giãn và cân bằng năng lượng.
3.6. Mái nhà
- Thiết kế mái nhà hợp lý: Mái nhà nên có độ dốc vừa phải để tránh tình trạng nước đọng, đồng thời cũng giúp thoát khí nóng hiệu quả.
3.7. Năng lượng lưu thông
- Đảm bảo thông gió và ánh sáng tự nhiên: Cần thiết kế cửa sổ lớn và thông thoáng để đảm bảo không khí lưu thông tốt trong nhà, tránh tình trạng bí bách.
3.8. Tránh góc nhọn
- Hạn chế góc nhọn hướng vào nhà: Các góc nhọn từ các công trình xung quanh có thể tạo ra năng lượng tiêu cực, nên cần xem xét vị trí xây dựng để hạn chế điều này.
Tham khảo: Thiết kế nhà phố diện tích nhỏ với không gian xanh mát

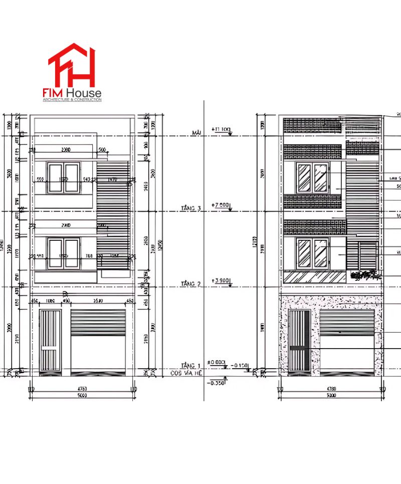
Bản vẽ thiết kế nhà phố 3 tầng
4. Lưu ý khi lựa chọn mẫu nhà phố 3 tầng
Khi lựa chọn mẫu nhà phố 3 tầng, có một số lưu ý quan trọng mà gia chủ cần xem xét để đảm bảo ngôi nhà không chỉ đẹp mà còn phù hợp với nhu cầu sử dụng và phong thủy. Dưới đây là những điểm cần lưu ý:
- Diện tích xây dựng: Cần xác định rõ diện tích đất để lựa chọn mẫu nhà phù hợp. Mẫu nhà 3 tầng thường thích hợp cho các khu đất hẹp chiều ngang nhưng sâu.
- Hình dạng đất: Hình dạng đất cũng ảnh hưởng đến thiết kế. Đất hình chữ nhật hoặc vuông sẽ dễ dàng hơn trong việc bố trí không gian.
- Lựa chọn phong cách: Có nhiều phong cách thiết kế như hiện đại, tân cổ điển, hoặc kiểu Pháp. Gia chủ nên chọn phong cách phù hợp với sở thích cá nhân và hài hòa với các công trình xung quanh.
- Bố trí không gian: Cần xác định rõ các phòng chức năng cần thiết như phòng khách, phòng ngủ, phòng bếp và phòng thờ. Bố trí khoa học giúp tối ưu hóa không gian sống.
- Hướng nhà: Chọn hướng nhà theo tuổi của gia chủ để đảm bảo thu hút tài lộc và sức khỏe.
- Bố trí nội thất: Cần chú ý đến cách bố trí nội thất sao cho hợp lý và thuận tiện, đồng thời tránh những điều kiêng kỵ trong phong thủy.
- Ngân sách: Xác định ngân sách trước khi bắt đầu thiết kế và xây dựng để tránh phát sinh chi phí không đáng có.
- Thời gian hoàn thành: Nên lựa chọn mẫu nhà có thiết kế đơn giản để rút ngắn thời gian thi công, giúp gia đình nhanh chóng có được không gian sống mới.
- Tiết kiệm năng lượng: Nên xem xét các giải pháp tiết kiệm năng lượng như hệ thống cách nhiệt tốt, sử dụng năng lượng mặt trời để giảm chi phí vận hành.
5. Kết luận
Thiết kế nhà phố 3 tầng hiện đại đang trở thành xu hướng phổ biến nhờ vào tính thẩm mỹ, công năng và khả năng tiết kiệm diện tích. Mẫu nhà này không chỉ đáp ứng nhu cầu sinh hoạt của gia đình mà còn mang lại không gian sống thoải mái và tiện nghi. FIM House tự hào mang đến những giải pháp thiết kế sáng tạo, phù hợp với phong cách sống hiện đại và yêu cầu phong thủy. Hy vọng rằng những thông tin trên sẽ giúp bạn tìm được mẫu nhà phố 3 tầng lý tưởng, đáp ứng cả về mặt thẩm mỹ và công năng sử dụng.
Nếu cần tư vấn thiết kế nhà phố, biệt thự vui lòng liên hệ:
Công ty TNHH Tư Vấn Thiết Kế & Xây Dựng FIM House
- Hotline/ Zalo: 0972078901
- Gmail: info.fimhouse@gmail.com
- FB: Thiết Kế Nhà Đẹp – FIM House
- Địa chỉ: 228 Phạm Văn Bạch, P15, Quận Tân Bình
Fim House Kiến Tạo – Làm Mới Không Gian Sống
Xem thêm
Mẫu nhà phố ở kết hợp kinh doanh tiết kiệm chi phí hiệu quả
Thiết kế nhà phố mặt tiền 4m hiện đại và tiết kiệm chi phí
Thiết kế nhà phố 2 tầng đẹp với phong cách ấn tượng

 
					 
                                 
                                