Thiết kế nhà 40m2 3 phòng ngủ cần tận dụng tối đa diện tích để tối ưu công năng sử dụng cho không gian sống tiện nghi, thông thoáng. Trong bài viết này Fim House sẽ gửi đến gia chủ những mẫu thiết mới nhất hiện nay.
Contents
1. Thiết kế mặt tiền nhà 40m2 3 phòng ngủ
Mặt tiền nhà 40m2 3 phòng ngủ với sự kết hợp hài hòa, vô cùng bắt mắt. Thiết kế nhà phố hiện đại, đơn giản những vẫn đảm bảo về mặt phong thủy và tính thẩm mỹ

2. Mặt bằng công năng thiết kế nhà 40m2 3 phòng ngủ
Bố trí công năng cũng là một trong những hạng mục vô cùng quan trọng có ảnh hưởng trực tiếp đến tính thẩm mỹ của căn nhà. Mặt bằng công năng nhà 40m2 3 phòng ngủ gia chủ có thể tham khảo như sau:
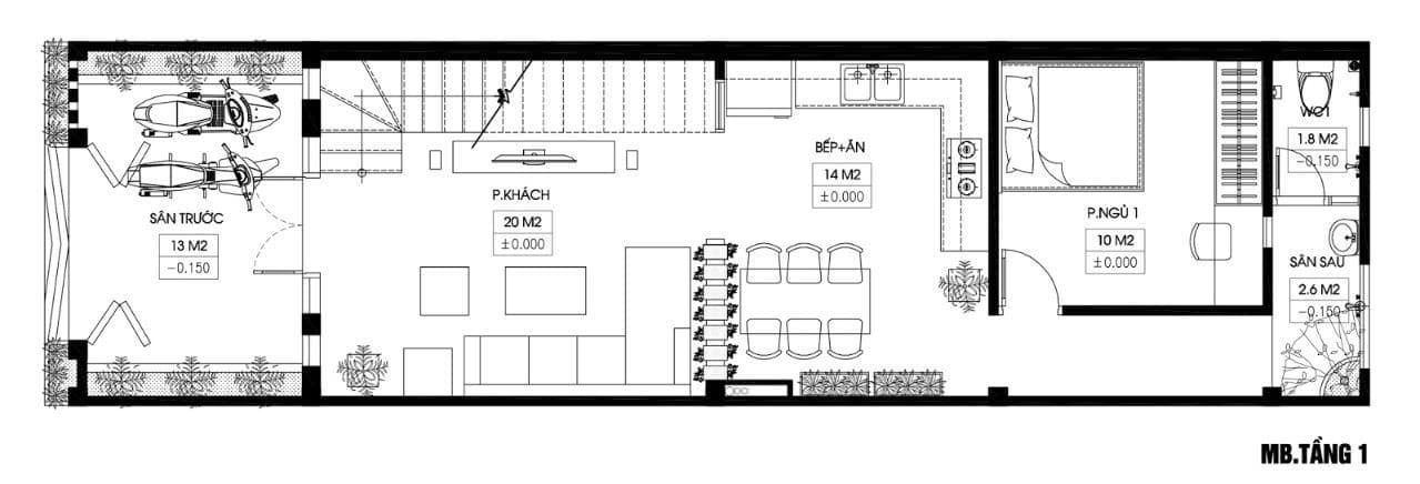
Mặt bằng công năng tầng trệt
Không gian tầng trệt sẽ được ưu tiên cho các khu vực sinh hoạt chung cho các thành viên như phòng khách, bếp và phòng ăn, WC, sân trước, san sau… Mặt bằng tầng trệt cần được sắp xếp thật khoa học cho các khu vực sinh hoạt chung để tạo sự thuận mắt, tăng tính thẩm mỹ cho căn nhà.

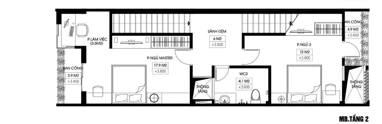
Mặt bằng công năng tầng 2
Đối với mặt bằng tầng 2 phòng ngủ sẽ là không gian riêng tư của các thành viên trong gia đình, khu vực này chủ yếu là các phòng ngủ, phòng làm việc, phòng đọc sách và sân phơi. Phòng ngủ của các thành viên sẽ được thiết kế theo sở thích khác nhau của từng thành viên, lứa tuổi sử dụng.

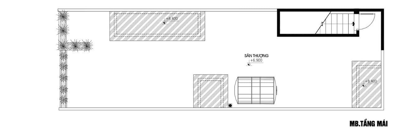
Mặt bằng tầng mái
Đây sẽ là nói gia chủ có thể dùng để thư giãn, nghỉ ngơi, tận hưởng không khí trong lành và tạo ra nhiều hoạt động giải trí thú vị.

3. Mẫu thiết kế nhà 40m2 3 phòng ngủ
Thiết kế nhà 40m2 3 phòng ngủ nhỏ xinh, đơn giản
Những thiết kế nhà 40m2 3 phòng ngủ nhỏ xinh nhưng lại vô cùng cuốn hút với nét đẹp riêng biệt. Với diện tích 40m2 vẫn đảm bảo đẩy đủ công năng sinh hoạt của các thành viên.


Thiết kế nhà 1 trệt 1 lầu
Thiết kế nhà 1 trệt 1 lầu 40m2 có thể đáp ứng nhu cầu cho gia đình có từ 2 – 3 thế hệ chung sống. Không gian sinh hoạt chung và riêng được bố trí, sắp xếp hợp lý, không tạo cảm giác rườm rà, chật chội.


Thiết kế nhà 3 tầng
Những mẫu thiết kế nhà 40m2 3 phòng ngủ 3 tầng luôn đáp ứng đầy đủ công năng cho các thành viên. Nhà 3 tầng 40m2 phù hợp với nhiều phong cách kiến trúc khác nhau. Mặt tiền nhà 3 tầng 40m2 có thể dùng để bố trí không gian xanh ở khu vực ban công tăng thêm thẩm mỹ cho căn nhà.





Thiết kế nhà 40m2 3 phòng ngủ có gara
Nhu cầu sử dụng gara để xe trong thiết kế nhà ở cũng được rất nhiều chủ đầu tư quan tâm trong thời gian gân đây. Một vài gợi ý những mẫu nhà có hầm để xe vô cùng tiện lợi ngay sau đây


Nếu bạn chưa tìm mẫu ưng ý hãy liên hệ Fim House hotline/zalo 0972.078.901 để được tư vấn thiết kế miễn phí.
Bài viết liên quan
- Mẫu nhà 1 trệt 2 lầu hiện đại
- Thiết kế nhà 1 trệt 1 lửng 2 lầu 1 sân thượng
- Thiết kế nhà 3 tầng có tầng hầm
- Chi phí xây nhà 3 tầng 50m2
- Mẫu nhà 3 tầng có gác lửng
- Thiết kế nhà 1 trệt 3 lầu
- Mẫu nhà 3 tầng mái lệch
