Nhà lệch tầng là một trong những mẫu nhà có sức hút rất lớn với nhiều gia chủ, đó là nhờ lối kiến trúc độc đáo hay vì lý do nào khác? Mời bạn cùng Fim House tìm hiểu chi tiết nhà lệch tầng là gì? Các mẫu thiết kế nhà lệch tầng đẹp qua bài tổng hợp bên dưới nhé.
Contents
1. Nhà lệch tầng là gì?

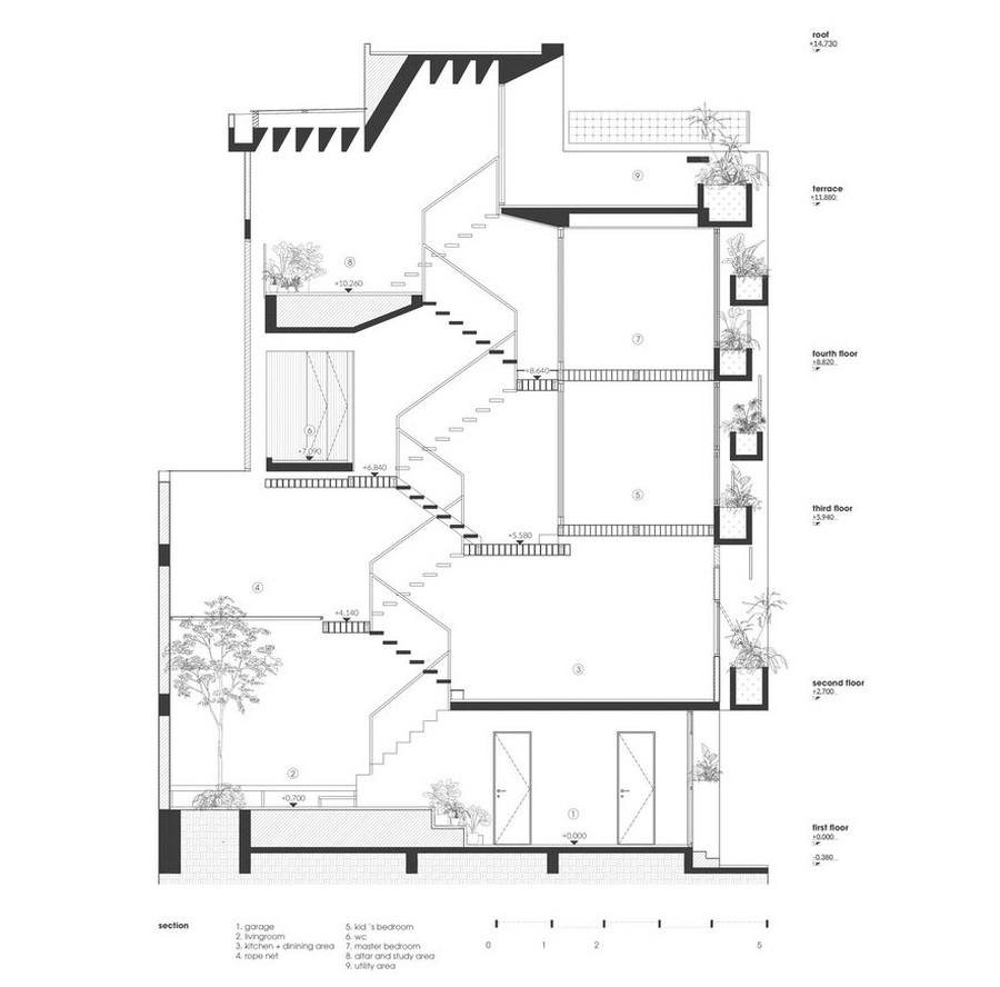
Nhà lệch tầng là một kiểu kiến trúc nhà ở mà các tầng không nằm hoàn toàn ngang hàng với nhau mà được thiết kế với các tầng lệch nhau theo chiều ngang hoặc dọc. Một kiểu nhà lệch tầng phổ biến là nhà lệch theo chiều dọc, nơi một hoặc nhiều tầng nhô ra phía trước hoặc phía sau so với các tầng còn lại, tạo ra một kiểu dáng độc đáo và hấp dẫn.
2. Có nên xây nhà lệch tầng không?
Để trả lời cho câu hỏi có nên xây nhà lệch tầng không? Chắc hẳn phụ thuộc vào sự lựa chọn của gia chủ dựa trên ưu và nhược điểm của nhà lệch tầng.
Ưu điểm:
- Tạo điểm nhấn kiến trúc: Nhà lệch tầng tạo ra một kiểu dáng độc đáo và thu hút, làm nổi bật ngôi nhà so với những ngôi nhà truyền thống.
- Tận dụng địa hình: Thiết kế nhà lệch tầng giúp tận dụng tối đa địa hình đất đai, đặc biệt là trên các khu vực đất có độ dốc, đồi núi.
- Không gian sáng tạo: Cấu trúc lệch tầng mở ra không gian sáng tạo, cho phép các kiểu dáng và mục đích sử dụng đa dạng.
- Tạo cảm giác rộng rãi: Sự lệch tầng có thể tạo ra cảm giác không gian rộng hơn, sâu và phức tạp hơn so với các thiết kế nhà thông thường.
Nhược điểm:
- Chi phí xây dựng cao: Việc xây dựng nhà lệch tầng có thể đòi hỏi chi phí xây dựng cao hơn so với các kiểu nhà truyền thống, do đòi hỏi kỹ thuật và vật liệu xây dựng phức tạp hơn.
- Khó thiết kế nội thất: Cấu trúc lệch tầng đôi khi làm cho việc bố trí nội thất trở nên phức tạp hơn, đòi hỏi sự sáng tạo và kỹ thuật.
- Khả năng sử dụng hạn chế: Cấu trúc lệch tầng có thể tạo ra không gian sử dụng không hiệu quả, có thể làm giảm tính tiện ích của một số phòng.
- Phụ thuộc vào quy hoạch: mỗi khu vực sẽ có quy định về chiều cao tầng và số tầng được xây dựng, cần đảm bảo nhà lệch tầng phải phù hợp với một số quy định xây dựng về chiều cao từng tầng.
- Bất tiện cho người già và trẻ em: tổng thể nhà lệch tầng sẽ có nhiều bậc nên việc lên xuống bậc thang quá nhiều gây ra sự bất tiện, cảm giác không thoải mái.
Tóm lại, việc xây dựng nhà lệch tầng mang lại sự độc đáo và sáng tạo cho không gian sống, tuy nhiên, gia chủ cần xem xét kỹ lưỡng về mặt kỹ thuật, tài chính và sở thích cá nhân trước khi quyết định thực hiện.
3. Nên xây nhà lệch tầng khi nào
Nhà lệch tầng mang lại hiệu quả về mức độ thông gió đối với những ngôi nhà dài. Tùy theo quan điểm thẩm mỹ và kết cấu của các tòa nhà, căn nhà sẽ có những thiết kế, trang trí khác nhau. Từ nhu cầu đó mới có thể nói lệch tầng hay đồng tầng tốt hơn.
Với những kiểu nhà phố chật hẹp về diện tích, sẽ có sự gò bó một cách đơn điệu trong cấu trúc. Nhà lệch tầng tạo ra sự thay đổi về hình khối, phá cách để đem đến sự mới lạ cho không gian sống, phù hợp với những người thích sự mới mẻ và đa dạng.
4. Mẫu thiết kế nhà lệch tầng đẹp hiện đại
4.1 Mẫu cấu trúc nhà lệch tầng





4.2 Mẫu thiết kế mặt tiền nhà lệch tầng đẹp






5. Đơn vị thiết kế và thi công uy tín
Mỗi gia chủ đều có mong muốn xây được một ngôi nhà đẹp, có công năng phù hợp, tiện nghi. Để tìm ra mẫu nhà phù hợp với nhu cầu sinh hoạt thì gia chủ có thể chia sẻ mong muốn đó cùng các kiến trúc sư để được tư vấn.
Ngoài những ưu điểm đặc trưng của mẫu thiết kế nhà lệch tầng mang lại. Mọi công năng còn phải đáp ứng và phù hợp với thành viên trong gia đình sử dụng, không gian sống như vậy mới thật sự hoàn hảo. Vì vậy gia chủ cần một đơn vị thiết kế và thi công uy tín. Những công ty đủ kinh nghiệm để có thể mang đến một không gian sống tuyệt vời, đảm bảo phục vụ được mọi nhu cầu sinh hoạt của thành viên trong gia đình.
Hy vọng những mẫu thiết kế nhà lệch tầng đẹp hiện đại 2024 mà Fim House tổng hợp đã sẽ mang đến những ý tưởng cho ngôi nhà của bạn. Nếu cần tư vấn thiết kế nhà phố, biệt thự vui lòng liên hệ Fim House hotline/zalo 097.2078.901.
Bài viết liên quan
- Cách tính chi phí xây nhà 3 tầng
- Mẫu thiết kế nhà 3 tầng có tầng hầm
- Mẫu nhà 3 tầng mái bằng hiện đại
- Mẫu nhà 3 tầng mái lệch
- Nhà 3 tầng có gác lửng

 
					 
                                 
                                