Nếu bạn đang có dự định xây dựng một ngôi nhà đảm bảo đầy đủ yếu tố tiện nghi và hiện đại thì mẫu thiết kế nhà ngang 6m dài 15m 2 tầng là gợi ý lý tưởng. Mẫu nhà này có đa dạng phong cách kiến trúc phù hợp với sở thích của nhiều gia chủ.
Contents
1. Phối cảnh mặt tiền mẫu thiết kế nhà ngang 6m dài 15m 2 tầng
Mẫu thiết kế nhà ngang 6m dài 15m 2 tầng theo phong cách đơn giản, phối hợp cùng gam màu trắng sáng thể hiện sự tinh tế, nhẹ nhàng.

Thiết kế cửa kính chắc chắn, sang trọng, ban công trồng cây xanh giúp điều hòa không khí mang đến không gian sống tươi mát, thoải mái, trong lành. Thiết kế mái bằng hiện đại với góc nhỏ ban công đón ánh sáng và gió trời. Đây là một mẫu nhà phố với thiết kế tối giản nhưng được nhiều người lựa chọn bởi sự kinh tế và nhẹ nhàng mà nó mang lại.
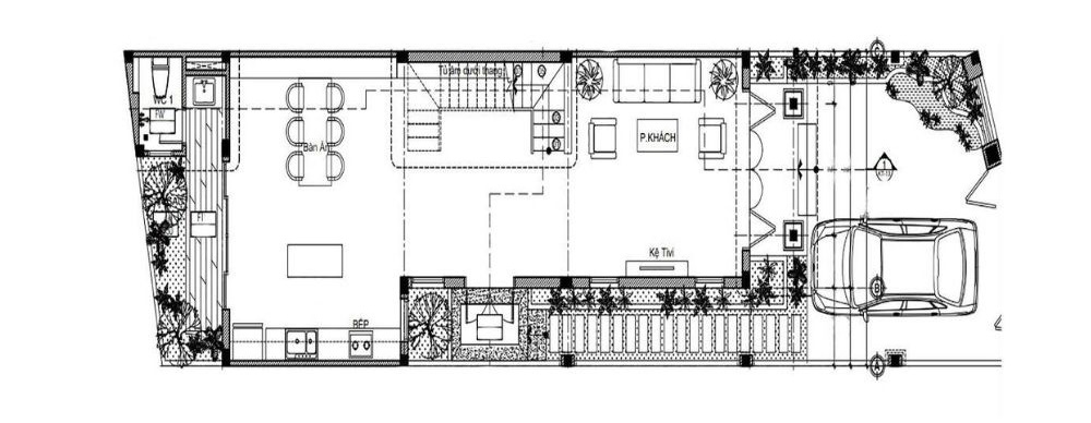
2. Bản vẽ mặt bằng mẫu thiết kế nhà ngang 6m dài 15m 2 tầng
Sau đây là bản vẽ công năng thiết kế nhà ngang 6m dài 15m 2 tầng để gia chủ tham khảo:
Mặt bằng công năng tầng trệt
Tầng trệt được thiết kế bao gồm: Gara, phòng khách, phòng bếp, phòng ăn, 1 nhà vệ sinh và khoảng sân sau. Khu vực phía sau là nhà vệ sinh, bên cạnh là khoảng sân sau dùng làm nơi phơi đồ vô cùng hợp lý.

Mặt bằng công năng tầng 2
Tầng 2 bao gồm: 2 phòng ngủ, 1 phòng sinh hoạt chung, 1 phòng vệ sinh, và sân thượng. Đặc biệt, 2 phòng ngủ có thiết kế không gian rộng bố trí thêm một vài món đồ nội thất như bàn làm việc hay tủ quần áo,… nhằm tận dụng triệt để không gian. Tầng 2 với điểm nhấn là khoảng sân thượng tuy có diện tích nhỏ nhưng có khả năng đòn ánh sáng và không khí tự nhiên vào ngôi nhà. Phòng sinh hoạt chung được đặt giữa nhà mang lại sự thuận tiện cho các thành viên trong gia đình.

3. Thiết kế nội thất ngôi nhà
Nội thất phòng khách
Phòng khách được bố trí và sắp xếp các món đồ nội thất một cách khoa học, gọn gàng. Sử dụng gam màu chủ đạo là màu trắng làm tôn lên vẻ đẹp của những vật dụng khác như ghế sofa vàng hoặc nâu đậm. Kết hợp các màu sắc hài hòa và cân đối mang lại một không gian năng động trẻ trung đồng thời toát lên tính cách và gu thẩm mỹ của gia chủ. Ngoài ra, còn có thể kết hợp một số điểm nhấn khác cho căn phòng như: Trồng cây xanh để điều hòa không khí, gắn tranh treo tường, sử dụng thảm trải sàn họa tiết,…

Nội thất phòng ăn
Phòng ăn sử dụng các bộ bàn ghế được bọc đệm với khung gỗ mộc mạc, sang trọng vừa tinh tế mà lại thoải mái khi sử dụng. Phần tường được trang trí thêm các bức tranh với họa tiết độc đáo tạo điểm nhấn cho bức tường màu trắng giúp cho không gian phòng bếp thêm ấm cúng.

Nội thất phòng ngủ
Phòng ngủ nên ưu tiên sử dụng các chất liệu làm từ gỗ mang lại cảm giác nhẹ nhàng, sang trọng và ấm áp. Phòng ngủ nên trang trí thêm những chậu cây xanh giúp điều hòa không khí. Ngoài ra gia chủ cũng có thể kết hợp những bức tranh nghệ thuật để tạo cho không gian phòng ngủ tinh tế, thư giãn hơn.

Lưu ý khi thiết kế phòng ngủ cho trẻ em nên trang trí màu sắc theo sở thích, giới tính của bé. Trần nhà có thể lắp đặt đèn âm trần với màu sắc nhẹ nhàng. Các đồ nội thất được bố trí khoa học, gọn gàng để phòng ngủ rộng rãi, sạch sẽ và mang đến cho trẻ không gian học tập vui chơi thoải mái nhất.
Nội thất phòng thờ
Phòng thờ nên làm từ chất liệu gỗ sang trọng thể hiện đẳng cấp của gia chủ.Ngoài ra, gia chủ có thể trang trí thêm chậu cây ở hai bên vừa đẹp mắt vừa mang lại không khí trang nghiêm cho khu vực phòng thờ.

Nội thất phòng tắm
Nội thất phòng tắm sang trọng và đầy đủ tiện nghi. Thiết bị tự động hiện đại mang lại cảm giác thoải mái cho người dùng. Khu vực tắm và khu vực vệ sinh nên được ngăn cách bởi tấm kính để hạn chế nước bắn ra ngoài gây trơn trượt.

4. Gợi ý một số mẫu thiết kế nhà ngang 6m dài 15m 2 tầng




Với những thông tin và các mẫu thiết kế nhà ngang 6m dài 15m 2 tầng mà Fim House chia sẻ qua bài viết trên chắc chắn sẽ là một trong những gợi ý xây nhà tuyệt vời dành gia chủ.
Bài viết liên quan
- Cách tính chi phí xây nhà 3 tầng
- Mẫu thiết kế nhà 3 tầng có tầng hầm
- Mẫu nhà 1 trệt 1 lửng 5×15
- Mẫu nhà 3 tầng mái lệch
- Mẫu nhà 1 trệt 1 lửng 1 lầu 4×12 đẹp hiện đại
- Chi phí xây nhà 3 tầng 90m2
- Cải tạo nhà cũ thành nhà mới
